
SANY Rotary And Air Condition Oil Circurt STC2
What is the SANY Rotary And Air Condition Oil Circurt STC2
- The SANY Rotary And Air Condition Oil Circuit STC2 is an integrated hydraulic and climate control system designed to ensure seamless operation of rotational machinery functions while maintaining optimal cabin comfort. Central to this system is the Plunger Motor, which drives hydraulic power for rotary movements with precision and reliability. The circuit incorporates multiple Pipe GP, steel and Pipe, rubber components, forming durable conduits for oil transmission, while Hose, rubber elements provide flexibility to accommodate mechanical movements and vibrations.
- Hydraulic control is managed by the Rotary cushion valve assembly STC250S1.12, which ensures smooth deceleration and precise positioning during rotation, and the Valve GP, throttle, one-way that regulates flow direction and speed. The Assembly GP, directional valve, solenoid enables automated control over hydraulic functions, enhancing operational efficiency. Connectivity is ensured through high-pressure Connector, pipe and Fitting, pipe joints, with Connector, pipeA providing specialized integration points.
- All components are securely mounted using high-grade Bolt, Nut, and Washer fasteners, guaranteeing vibration-resistant stability. The Clamp, single pipe secures pipelines firmly, preventing displacement under dynamic loads. This system exemplifies SANY’s commitment to innovation, combining hydraulic performance with operator comfort through integrated climate control functionality. The SANY Rotary And Air Condition Oil Circuit STC2 delivers durability, efficiency, and reliability in demanding industrial applications.
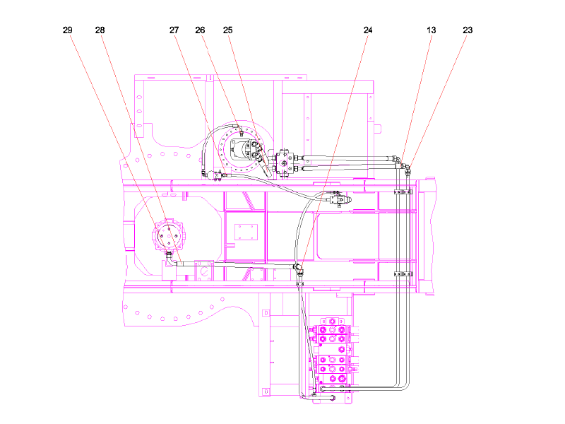
Parameters of SANY Rotary And Air Condition Oil Circurt STC2 (1/2)
| Item No. | Part No. | Description | Qty. |
| 1 | A210401000017 | Washer | 2 |
| 2 | A210110000277 | Bolt | 2 |
| 3 | A210307000012 | Nut | 2 |
| 4 | B210780001026 | Connector, pipe | 1 |
| 5 | A210111000040 | Bolt | 4 |
| 6 | 60156514 | Plunger Motor | 1 |
| 7 | A229900002815 | Fitting, pipe | 2 |
| 8 | 12207548 | Rotary cushion valve assemblySTC250S1.12 | 1 |
| 9 | A210111000011 | Bolt | 4 |
| 10 | A210401000001 | Nut | 4 |
| 11 | 11549353 | Assembly GP, directional valve, solenoid | 1 |
| 12 | 11664041 | Pipe GP, steel | 1 |
| 13 | B230103000959 | Hose, rubber | 2 |
| 14 | A229900002419 | Clamp, single pipe | 5 |
| 15 | A210401000016 | Washer | 2 |
| 16 | A210111000079 | Bolt | 2 |
| 17 | 11663049 | Pipe GP, steel | 1 |
| 18 | 11664321 | Pipe GP, steel | 1 |
| 19 | B230103005325 | Pipe, rubber | 1 |
| 20 | A831313055000 | Hose, rubber | 1 |
| 21 | 10138470 | Valve GP, throttle, one-way | 1 |
| 22 | A229900002559 | Connector, pipe | 1 |
Parameters of SANY Rotary And Air Condition Oil Circurt STC2 (2/2)
| Item No. | Part No. | Description | Qty. |
| 13 | B230103000959 | Hose, rubber | 2 |
| 23 | A229900002561 | Connector, pipe | 2 |
| 24 | B210780001153 | Connector, pipe | 1 |
| 25 | B230103001193 | Hose, rubber | 2 |
| 26 | A229900002537 | Connector, pipe | 1 |
| 27 | B230103000610 | Hose, rubber | 1 |
| 28 | B230103001595 | Pipe, rubber | 1 |
| 29 | A229900002581 | Connector, pipe | 1 |
Related SANY Spare Parts
Hot-Selling SANY Truck Crane
Why Choose Us?
SANYMACH offers professional product detail pages and technical documentation within minutes based on users’ equipment needs, ensuring clear information access and efficient procurement preparation. For customers of SANY construction machinery (including excavators, cranes, off-highway trucks like the SANY SKT90S, and concrete machinery), its decade-long industry expertise provides customized solution packages per project scale/business scenarios to accelerate project kickoff and operational efficiency. We also optimize equipment selection based on your construction scope, operational focus, capabilities, budget and site conditions for smooth execution, recommend cost-effective models per regional demands, suggest after-sales packages and maintenance cycles, and collaborate to ensure timely project delivery, long-term equipment value and mutual development with SANYMACH clients.
Online Catalog of SANY Parts
If you have any questions about our products, services, or anything related to what we offer, please don’t hesitate to leave us a message—our dedicated team is always ready to provide prompt and helpful responses to address your concerns. What’s more, when you become our valued customer, we’re delighted to offer you complimentary catalog services, giving you access to detailed, up-to-date information on our full range of products, specifications, and offerings to help you make informed decisions.














